DUBLIN FIRE TRAINING CENTER

DUBLIN FIRE TRAINING CENTER

Location: Alameda, CA
Project. Type:
Governmental, Fire Dept.

Realistic training. Ready responders. Safer communities. A Center for Life-Saving Excellence. Designed to train, inspire, and protect, the Alameda County Fire Training Center strengthens emergency response while delivering real benefits to the community every day.

Alameda County GSA Capital Projects is developing a new Alameda County Fire Training Center, collocated with the Alameda County Regional Emergency Response Center (ACRECC), on a 5.2-acre County-owned property at Gleason Drive and Madigan Road in Dublin, California.

Approximately 3.8-4.5 acres of the site will be improved, with the County responsible for mitigating any contaminated soil or hazardous materials that may exist below grade prior to construction.

The new public safety facility will feature a range of amenities, including:

  • A single-story training classroom building

  • An outdoor classroom

  • A five-story training tower for live fire training scenarios utilizing LPG gas-fired props

  • An Urban Search & Rescue (USAR) prop

  • A fire apparatus storage building

  • A general storage building

  • LPG gas storage tanks

  • The proposed Alameda County Regional Communications Center (ACRECC) Building

  • Associated site work, including a approximately 150-foot communications tower (to be verified)

The site will be served by existing public utilities, and stormwater retention and filtration will be addressed on-site.

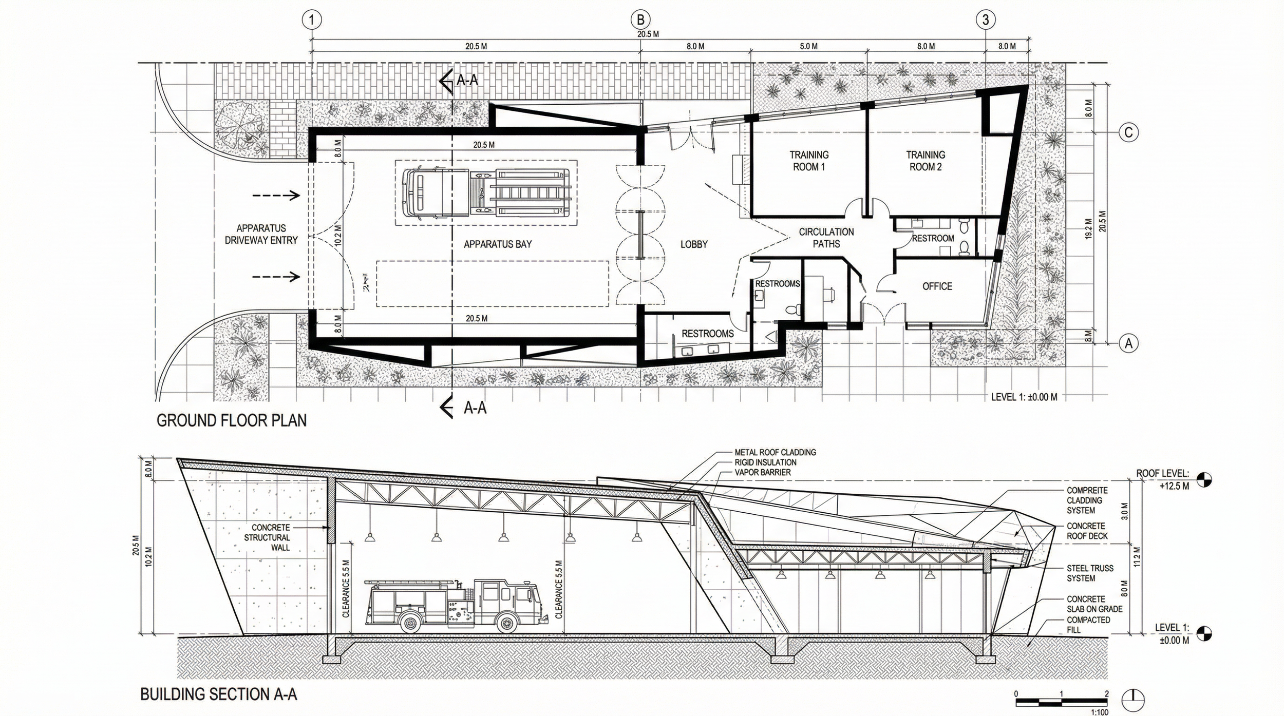
PLAN AND SECTION DRAWING
Previous
Previous

Cali Tower

Next
Next

LOS ANGELES